Order this information in Print

Order this information on CD-ROM

Download in PDF Format

     

Click here to make tpub.com your Home Page

Page Title: Accessory Location Purpose Special Requirements
Back | Up | Next

tpub.com Updates

Google


Web
www.tpub.com

Home

   
Information Categories
.... Administration
Advancement
Aerographer
Automotive
Aviation
Combat
Construction
Diving
Draftsman
Engineering
Electronics
Food and Cooking
Math
Medical
Music
Nuclear Fundamentals
Photography
Religion
USMC
   
Products
  Educational CD-ROM's
Printed Manuals
Downloadable Books
   

 

Back ] Home ] Up ] Next ]

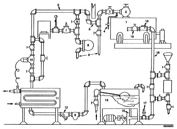
ACCESSORY LOCATION PURPOSE SPECIAL REQUIREMENTS

Figure 12-1.-Boiler accessary equipment. 12-5

 

FITTINGS

Before reading table 12-1(A), open the fold out on page 12-9(A) and refer to figure 12-2 and 12-3.

Table 12-1(A).-Description of Boiler Fittings

Table 12-1(A) (Continued).-Description of Boiler Fittings

Table 12-1(A) (Continued).-Description of Boiler Fittings

Back ] Home ] Up ] Next ]

Privacy Statement - Press Release - Copyright Information. - Contact Us - Support Integrated Publishing

Integrated Publishing, Inc. - A (SDVOSB) Service Disabled Veteran Owned Small Business