Share on Google+Share on FacebookShare on LinkedInShare on TwitterShare on DiggShare on Stumble Upon
Custom Search
 
  

 
WATER SUPPLY AND DISTRIBUTION

A water supply system consists of all the facilities, equipment, and piping that are used to obtain, treat, and transport water for a water distribution system. A distribution system is a combination of connected pipes that carry the supplied water to the users. In this section, we will discuss water distribution so you will be familiar with the elements of a distribution system and types of information that is required on distribution drawings. First,, however, we will discuss water sources and the need for water treatment. Although it is the engineers responsibility to select a water source for use, to determine the methods of developing the source, and to design the supply and distribution system, you should have a general knowledge of this subject so you, as a technician, will be better able to assist the engineer.

WATER SOURCES AND TREATMENT

While the Navy prefers to obtain potable water from nearby public sources, it is sometimes not possible to do so. The following text briefly discusses the different types of water sources, source selection and develop ment, and the need for water treatment.

Water Sources

For most uses, the principal source of water is rain. This source is classified as surface water and ground-water.

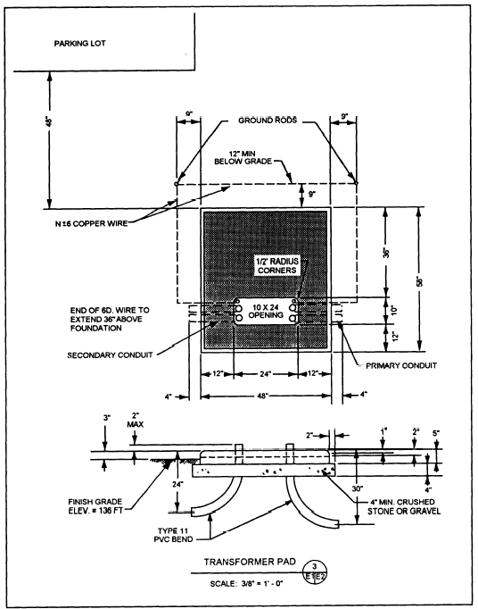
Figure 2-18.Transformer pad details for use with the site plan shown in figure 2-15.

Surface water is rain that runs off the ground into streams, rivers, and lakes. It is the most common source used for a water supply. The availability of this source, though, depends on the amount of rainfall an area receives. In areas where there is substantial rain, the amount of surface water may be plentiful; but in dry areas or during a drought, the supply may be minimal or significantly reduced.

Groundwater is the water that percolates through the soil and builds up as underground sources. As groundwater seeps through the soil, it collects over an impervious stratum (a layer of earth, usually rock, that the water cannot penetrate) and forms a water level known as the water table. The depth of the water table-or the distance from the ground surface to the water levelvaries considerably with the amount of rainfall. During droughts, the water table may be lowered, but during a rainy season it will probably rise. As you should understand from your studies of soil formation, the stratum over which groundwater accumulates is an irregular, rather than a continuously flat, plane. Therefore, unless the water is confined, it flows horizontally over the irregular stratum and is nearer the surface in some places than it is in other places. Where this underground water flows near the surface and the ground area is low, the water may flow out as a spring. Or, it may seep out and create a swampy area. The underground, flowing water also may become entrapped between impervious layers. In this case, enough water pressure may buildup to create an artesian well if the strata is penetrated by drilling or by a natural opening.

In some regions of the world, there is not enough surface water or groundwater available to support the need for water. In these areas alternative sources are necessary. Rain, itself, can be an alternative source. In some locations, large catchment areas are constructed to collect rain and store it for future use. These catchment areas are usually constructed on the side of a mountain or a hill facing the prevailing direction of rainfall. In other areas, snow and ice may be used as alternative sources. Another source, although costly to develop for use, is seawater that has had the salt removed by desalination.



Managed Security Service Provider
 


Privacy Statement - Copyright Information. - Contact Us

Integrated Publishing, Inc. - A (SDVOSB) Service Disabled Veteran Owned Small Business