Order this information in Print

Order this information on CD-ROM

Download in PDF Format

     

Click here to make tpub.com your Home Page

Page Title: Discharge Pulsation
Back | Up | Next

tpub.com Updates

Google


Web
www.tpub.com

Home

   
Information Categories
.... Administration
Advancement
Aerographer
Automotive
Aviation
Combat
Construction
Diving
Draftsman
Engineering
Electronics
Food and Cooking
Math
Medical
Music
Nuclear Fundamentals
Photography
Religion
USMC
   
Products
  Educational CD-ROM's
Printed Manuals
Downloadable Books
   

 

Back ] Home ] Up ] Next ]

Discharge Pulsation

Reciprocating compressor discharge lines are subject to pulsations caused by the compressor-forcing frequency. This sets up a resonant frequency in the discharge piping, and the resulting vibration amplification will cause noise, support damage, and piping damage. There

Figure 11-18.-Typical pressure lubrication system.

is no single solution to this problem, but some specific guidelines will be discussed below.

Pulsation dampeners serve as pulsation and noise mufflers by providing acoustical chambers with the dampener. Manufacturers generally provide dampeners to a specified discharge pulsation peak of 2 percent of line pressure. Figure 11-19 shows several typical pulsation dampeners. These units should be used whenever reciprocating and centrifugal compressors serve the same compressed air main, because the pulsations of the reciprocating compressor can transmit to and disturb the operation of the centrifugal compressor. Pulsation dampeners may not completely solve downstream resonance, but they will reduce the vibration amplitudes.

Several other ways to decrease noise and amplification caused by discharge pulsation are available. Surge chambers can be used to change the equivalent length of the piping and increase the pulse-absorbing volume of the pipe. A surge chamber can be as simple as an increased diameter of discharge piping near the compressor discharge. An orifice plate or plates may be installed in conjunction with surge chambers to change the acoustical resonant frequency of the piping system. Piping support is also important at the compressor. They must not only be supported from top or bottom but also have lateral support. When piping is large, provide spring-loaded twoway lateral supports to absorb vibration.

Controls

Compressor control systems generally include one or more controlling devices, such as safety controls, speed controls, and capacity controls. Such devices function in the system to regulate the output of the compressor as it meets the demand for compressed air.

On some small compressors the simple Bourdon tube-type pressure switch serves as a controller by actuating the prime mover on and off over a predetermined pressure range. More complex compressors require control systems that load and unload the compressor as air demands change. The CONSTANT-SPEED type of controller used with many compressors decreases or increases compressor capacity in one or more steps by the use of unloading devices, while allowing the prime mover speed to remain constant. Another type, referred to as the DUAL-CONTROL, is a combination of the constantspeed and an automatic start-stop control. It permits constant speeds when demands are continuous and an automatic stop or start when demands are light. There is still another system that enables the prime mover to idle and compressor suction valves to remain open when air pressure reaches a set maximum. As the pressure drops below a set minimum, the prime mover speed is increased, suction valves are closed, and air is compressed.

Figure 11-19.-Pulsation dampeners.

 

Generally, control systems include unloading devices that function to remove all but the friction loads on compressors. Thus starting is unaffected by compression loads. Various types of unloading devices are discussed below.

The inlet-valve-type unloader holds the inlet valve open mechanically during both the suction and compression strokes, thereby preventing compression. Figure 11-20 illustrates a common inlet valve unloader. The unloader is positioned above the inlet valve. When air pressure rises to the preset unloading pressure, a pressure switch operates a solenoid unloader valve, which opens and allows receiver pressure to the inlet valve unloader. The pressure from the receiver, acting on the diaphragm of the inlet valve unloader, forces the yoke fingers against the inlet valve, holding it open. The intake air is pushed back out the inlet valve on the compression stroke so no compression takes place.

Figure 11-21 illustrates the thin plate, low-lift type of compressor valve. Most compressors use this type of valve.

The use of an unloader valve on each cylinder and a pressure switch with a solenoid unloader valve provides a step or sequenced capacity control.

Figure 11-20.-Inlet valve unloader.

Figure 11-21.-Thin plate, low-lift, compressor valve assembly.

 

 

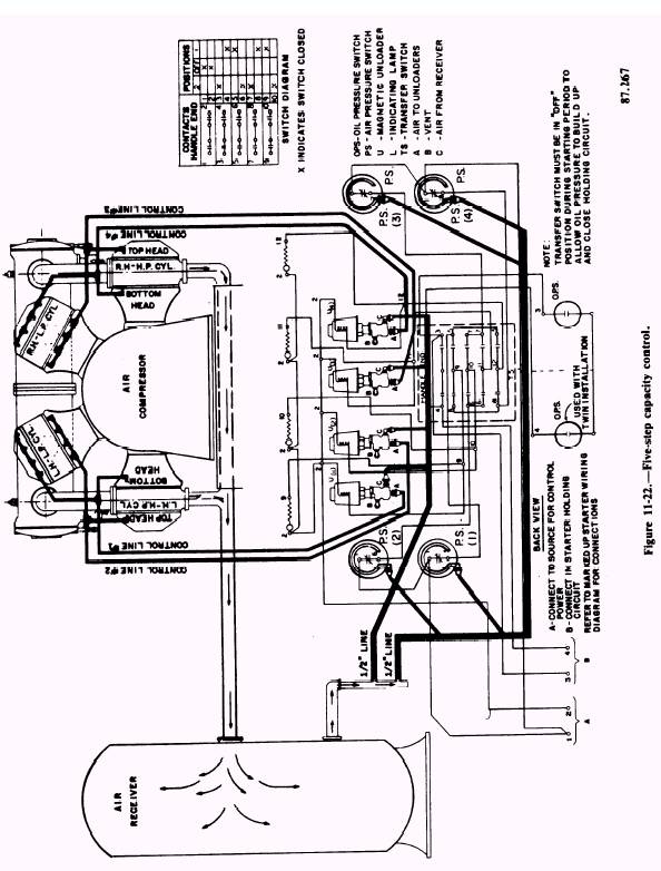
Figure 11-22 illustrates a flow diagram of a five-step capacity control system applied to a twostage, four-cylinder, double-acting, reciprocating compressor. Assuming that the compressor in the figure is required to maintain a pressure of 92 to 100 psi, the pressure switches should be set to load and unload as follows: switch 1, load at 93 psi and unload at 97 psi; switch 2, load at 94 psi and unload at 98 psi; switch 3, load at 95 psi and unload at 99 psi; and switch 4, load at 96 psi and unload at 100 psi. As the receiver pressure reaches the high limit of each pressure switch, 25 percent of the compressor capacity will unload. As receiver pressure falls to the low setting of each switch, 25 percent of the compressor capacity will load. Pressure switch 1 will therefore unload 25 percent of the compressor capacity at 97 psi and will load 25 percent at 93 psi, and so forth. As receiver pressure fluctuates between 93 and 100 psi, the compressor capacity varies in five steps; full, 75 percent, 50 percent, 25 percent, and zero capacity.

The compressor illustrated in figure 11-22 operates on the following principle: When it is started, air pressure switches are closed and the solenoids in the unloader valves become energized so that receiver pressure cannot enter the unloading lines, and compression is permitted. As the receiver pressure builds up and reaches 97 psi, pressure switch 1 breaks contact, de-energizing unloader 1, and allowing 97 psi receiver air to enter control line 1, actuating the inlet valve unloader. Twenty-five percent of the compressor has become unloaded and compression has reduced from full to 75-percent capacity. Control lines 2, 3, and 4 will operate in the same way as receiver pressure increases. At 100 psi, all cylinders will be unloaded. Air compression ceases, but the compressor continues to run under no load. As air is drawn off from the receiver, the pressure begins to drop. When the pressure falls to 96 psi, pressure switch 4 makes contact and energizes unloading valve 4, which cuts off receiver pressure from the inlet unloader and vents the unloader pressure to the atmosphere. The inlet valve unloader releases the inlet valve and normal compression takes place, loading the compressor to 25-percent capacity. If the demand for air increases and receiver pressure continues to decrease, control lines 3, 2, and 1 will load in sequence.

Another method of unloading a compressor is by the use of clearance pockets built into the cylinders. Normal clearance is the volume at the end of the piston and under the valves when the piston is at the end of the COMPRESSION

stroke. Figure 11-23 shows an air cylinder with clearance pockets and clearance valves used with a five-step clearance control. Each end of the cylinder is fitted with two clearance pockets that are connected with or cut off from the cylinder by air-operated clearance valves. A regulated device, not shown, which is operated by receiver pressure, uses pilot valves to open and close the clearance pocket valve in the proper sequence. Each clearance pocket can hold one-quarter of the air compressed by the cylinder in one stroke. When both pockets at the end of the cylinder are open, no air is taken into that end of the cylinder. Figure 11-24 illustrates the operation of clearance pockets under five-step clearance control.

Back ] Home ] Up ] Next ]

Privacy Statement - Press Release - Copyright Information. - Contact Us - Support Integrated Publishing

Integrated Publishing, Inc. - A (SDVOSB) Service Disabled Veteran Owned Small Business