Order this information in Print

Order this information on CD-ROM

Download in PDF Format

     

Click here to make tpub.com your Home Page

Page Title: Bill of Material
Back | Up | Next

tpub.com Updates

Google


Web
www.tpub.com

Home

   
Information Categories
.... Administration
Advancement
Aerographer
Automotive
Aviation
Combat
Construction
Diving
Draftsman
Engineering
Electronics
Food and Cooking
Math
Medical
Music
Nuclear Fundamentals
Photography
Religion
USMC
   
Products
  Educational CD-ROM's
Printed Manuals
Downloadable Books
   

 

Back ] Home ] Up ] Next ]

BILL OF MATERIAL

A bill of material (BM) is a tabulated statement of the material required for a given project. It contains information such as stock numbers, unit of issue, quantity, line item-number, description, vendor, and cost. Sometimes the bill of material will be submitted on either material estimate sheets or material takeoff sheets; each contains similar information. Actually, a bill of material is a grouped compilation based on the takeoffs and the estimates of all the materials needed to complete a structure. Usually, the takeoff sheet is an actual tally and checkoff of the items shown, noted, or specified on the construction drawings and specifications.

Most NAVFAC drawings will contain a bill of material incorporated within the drawings. But, there are times when you are directed to tabulate materials needed for a new project that has been designed in-house for cost estimating and funding.

ELECTRICAL WIRING AND MECHANICAL DIAGRAMS

You will be working with mechanical equipment thta requires electrical connections. Therefore, you should maintain close liaison with the Construction Electrician who will involve you in working with electrical diagrams as well as mechanical mechanical drawings. This section discusses types of electrical diagrams and their usage, as they apply to a Utilitiesman.

An "electrical diagram" is defined as a line drawing that shows the arrangement and/or

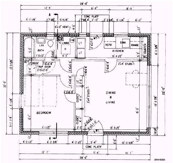
Figure 4-3.-Floor plan.

relationship of parts. Electrical diagrams are usually used to show how the parts of a piece of equipment or several pieces of equipment are wired together. These diagrams are similar to each other. Their names are sometimes used interchangeably, but they do have differences.

The types of diagrams with which you will be working are covered below. The short description of each should enable you to recognize the different diagrams.

Back ] Home ] Up ] Next ]

Privacy Statement - Press Release - Copyright Information. - Contact Us - Support Integrated Publishing

Integrated Publishing, Inc. - A (SDVOSB) Service Disabled Veteran Owned Small Business