Share on Google+Share on FacebookShare on LinkedInShare on TwitterShare on DiggShare on Stumble Upon
Custom Search
 
  

 
GENERAL REQUIREMENTS FOR WATER DISTRIBUTION DRAWINGS

The following text provides general information on the contents of water distribution plans and details.

Plans

The MINIMUM information that you should show on a water distribution plan is listed as follows:

1. Locations and lengths of mains

2. Sizes and types of piping materials

3. Locations, sizes, and types of all valves

4. Location of fire hydrants; meter pits; outlets on piers; elevated, ground, or underground water storage reservoirs; water wells; pump houses; and valve boxes, vaults, and manholes

5. Capacities and heads of all water pumps in pump houses, including minimum average and maximum residual pressures at points of connection to municipal water systems

6. Exterior sprinklers or fire mains, including indicator and main shutoff valves

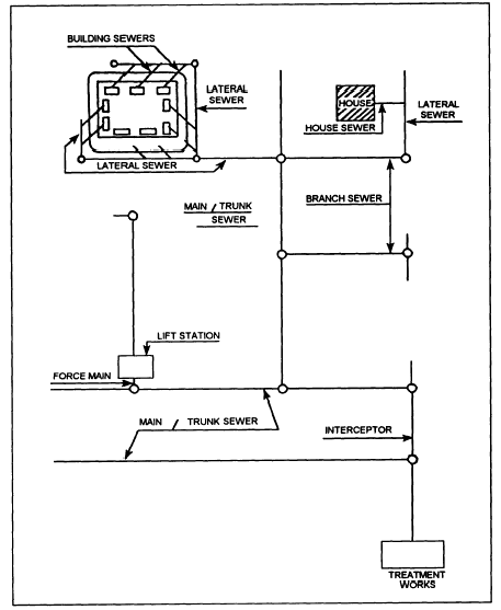
Figure 2-20.Diagram of a wastewater collection system.

Details

Details that should be included in a set of construction drawings of a water distribution system are varied and numerous. You may, for example, prepare plans, elevations, and details for a new water storage tank. Other examples are as follows: thrust block details, trench details for underground piping, details for aboveground pipe supports, and plans and details for valve boxes, vaults, and so forth. The design engineer will determine the details to be shown.

WASTEWATER SYSTEMS

In addition to drawings of electrical and water distribution systems, you may be required to prepare detailed drawings of wastewater systems. This section provides a brief overview of these systems so you will be familiar with the elements and structures used in wastewater systems and the general content requirements for wastewater system drawings.



Managed Security Service Provider
 


Privacy Statement - Copyright Information. - Contact Us

Integrated Publishing, Inc. - A (SDVOSB) Service Disabled Veteran Owned Small Business