Custom Search
 
  

 
 

Combustor and HP Turbine Aft of the right-hand side compressor ports are six circumferentially positioned ports, just forward of the midflange of the compressor rear frame. From these ports you can inspect the combustor, the stage 1 HP turbine nozzle assembly, and a few fuel nozzles. Near the aft flange of the compressor rear frame on the right-hand side of the engine are two HP turbine stator ports that you can use for viewing the air-cooled turbine blades. The Pt5.4 pressure probe harness adjacent to the after flange of the turbine midframe is located aft of the

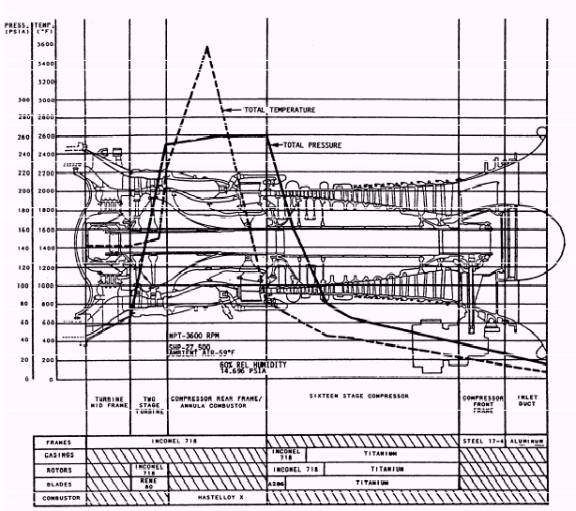
Figure 2-6.- Turbine materials and operating conditions. stage land 2 turbine ports. Five pressure probes are cover plate on the aft face, right-hand side of the located circumferentially around the turbine accessory gearbox, next to the lube and scavenge pump midframe at the inlet to the LP turbine. All five probes (fig. 2-8). When you are inspecting through the extend radially into the gas path and can be removed forward-most borescope ports, there is not enough space to inspect the LP turbine inlet and the HP turbine for both you and the person turning the engine to work exhaust. This requires you to do the turning yourself or to have

INDEXING AND ROTATING THE ENGINE the turner rotate the engine from the other location on the accessory gearbox. You can find the alternate drive You can rotate the engine by using a socket wrench pad for manual engine turning on the forward face, with an 18-inch long 3/ 4-inch drive extension. You left-hand side of the accessory gearbox, also shown in attach the 3/ 4-inch drive extension after you remove the figure 2-8.

Figure 2-7.- Borescope inspection ports.

Figure 2-8.- Engine turning locations for borescope inspections. Detailed procedures are provided for indexing and reference point for distress reporting for each stage. You rotating the engine on the MRC. Figures 2-9 and 2-10 should not concentrate on counting the blades. Instead, show the accessory drive gear ratios and the locking lugs concentrate on the specific condition of each airfoil as used for indexing the compressor rotor. Zero reference it passes. The forward and aft drive pads have different for the compressor and HP turbine stages is established drive ratios to the main rotor shaft. You may find it by use of the locking lug blades. Establishing the zero advantageous to use a torque multiplier to slow down reference ensures a complete inspection for each stage. and maintain better control over the main rotor speed. It also provides you an immediate circumferential Depending on the manual drive setup, you will be able

Figure 2-9.- Accessory drive gear ratios. to establish how many full arcs of the ratchet wrench are required to move the main rotor one full revolution. For example, when you are using the forward pad, a 344-degree revolution of the input drive equals 360 degrees on the main rotor.



Managed Security Service Provider
 


Privacy Statement - Copyright Information. - Contact Us

Integrated Publishing, Inc. - A (SDVOSB) Service Disabled Veteran Owned Small Business