Share on Google+Share on FacebookShare on LinkedInShare on TwitterShare on DiggShare on Stumble Upon
Custom Search
 
  

 

Valve position circuitry provides indication and control functions.

EO 1.4

Given a diagram of a position indicator, STATE the purpose of the following components:

a. Detection device

b. Indicator and control circuits

EO 1.5

STATE the two environmental concerns which can affect the accuracy and reliability of position indication equipment.

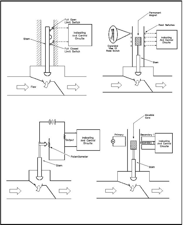
As described above, position detection devices provide a method to determine the position of a valve or control rod. The four types of position indicators discussed were limit switches, reed switches, potentiometer valve position indicators, and LVDTs (Figure 7). Reed and limit switches act as ON/OFF indicators to provide open and closed indications and control functions. Reed switches can also be used to provide coarse, incremental position indication.

Potentiometer and LVDT position indicators provide accurate indication of valve and rod position throughout their travel. In some applications, LVDTs can be used to indicate open and closed positions when small secondary windings are used at either end of the valve stem stroke.

The indicating and control circuitry provides for remote indication of valve or rod position and/or various control functions. Position indications vary from simple indications such as a light to meter indications showing exact position.

Control functions are usually in the form of interlocks. Pump isolation valves are sometimes interlocked with the pump. In some applications, these interlocks act to prevent the pump from being started with the valves shut. The pump/valve interlocks can also be used to automatically turn off the pump if one of its isolation valves go shut or to open a discharge valve at some time interval after the pump starts.

Valves are sometimes interlocked with each other. In some systems, two valves may be interlocked to prevent both of the valves from being opened at the same time. This feature is used to prevent undesirable system flowpaths.

Control rod interlocks are normally used to prevent outward motion of certain rods unless certain conditions are met. One such interlock does not allow outward motion of control rods until the rods used to scram the reactor have been withdrawn to a predetermined height. This and all other rod interlocks ensure that the safety of the reactor remains intact.

Figure 7 Position Indicators

Environmental Concerns

Ambient temperature variations can affect the accuracy and reliability of certain types of position indication instrumentation. Variations in ambient temperature can directly affect the resistance of components in the instrumentation circuitry, and, therefore, affect the calibration of electric/electronic equipment. The effects of temperature variations are reduced by the design of the circuitry and by maintaining the position indication instrumentation in the proper environment, where possible.

The presence of humidity will also affect most electrical equipment, especially electronic equipment. High humidity causes moisture to collect on the equipment. This moisture can cause short circuits, grounds, and corrosion, which, in turn, may damage components. The effects due to humidity are controlled by maintaining the equipment in the proper environment, where possible.

Summary

The accuracy and reliability of position indication instrumentation can be affected by ambient temperature and humidity. The purposes of position indicator components are summarized below.

Position Indicator Components Summary

Detection devices provide a method to determine the position of a valve or control rod.

The indicating and control circuitry provides for remote indication of valve or rod position and/or various control functions.

 



Managed Security Service Provider
 


Privacy Statement - Copyright Information. - Contact Us

Integrated Publishing, Inc. - A (SDVOSB) Service Disabled Veteran Owned Small Business